The City of Peoria is seeking a developer to create a quality commercial development to be colocated with our new multimillion dollar Build the Block development. The site faces Water Street, adjacent to the new Museum and Caterpillar Visitor Center. The site is in the Enterprise Zone and TIF District.

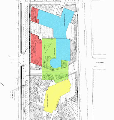
The drawing above is the most current site plan for the Block. Retail areas are shown in RED.
The Museum building is BLUE, and the Caterpillar building is YELLOW. The balance of the parcel would be a pavillion park and circulation space with sculpture and landscaping.
The retail faces is on the southeast side of the two block site facing Water and Liberty Street. The larger area is about 16,000 gsf, and the smaller area about 5,000 gsf.

No comments:
Post a Comment